Fabricación

FABRICACIÓN DE COMPONENTES

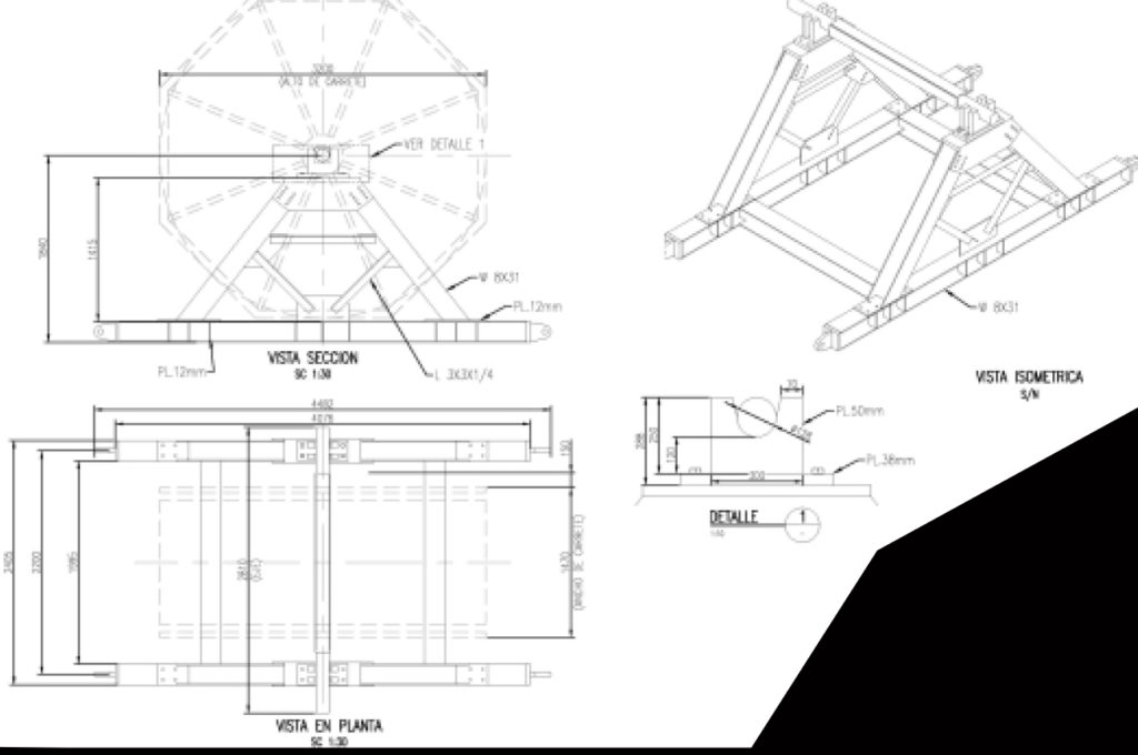
  • Diseño de planos de maniobras, selección de elementos de izaje.
  • Desarrollo de planos para propuestas técnicas y ejecución de servicios.
  • Cálculos eléctricos – mecánicos.
  • Cálculos mecánicos estructurales Análisis SAP2000.
  • Cálculos mecánicos para anclaje, soporte.
  • Cálculos de tuberías para el transporte de fluidos.
  • Reconstrucción y fabricación de atril, belt winder.

MAESTRANZA

  • Fabricación de bridas, pines, acoples, espárragos, rectificado de ejes.
  • Fabricación y rectificado de engranajes rectos, helicoidales, coronas, sellos mecánicos.
  • Rellenado y rectificación roscado de tuberías y niples.
  • Fabricación para base de Motores, perforaciones para tapas de manhole.
  • Fabricación y montaje pines, acoples, bujes.
    Servicio de corte para planchas de acero tuberías.
  • Fabricación de pernos, tuercas cumpliendo los estándares de calidad.
  • Soldeo de Aceros, bronce, aluminio, fierro fundido, inox y planchas de acero.

Ingeniería

En SERPROIN PERU SAC contamos con un área exclusiva de ingeniería, personal altamente eficiente para el desarrollo de planos de fabricación y de montaje para los diferentes proyectos que ejecutamos.